今回ご紹介する物件は、前回、【森の中で薪ストーブのある静かな暮らし700万円】の物件を扱っている西久保開発さんのご紹介物件です。
富士見町は複数別荘エリアがあり、大きく分けて、八ヶ岳側と南アルプス側である入笠山の麓。今回ご紹介するエリアは後者の南アルプス側の別荘エリアに位置しています。
富士見駅からは車で約20分程になります。
今回の物件は多少ユニークかもしれません。
というのも、別荘ではなく元々山小屋として使用されていた物件です。
山小屋らしく木の温もりを大切にされております。
それでは建物内を画像で紹介していきます。
リビングをキッチン側から、窓側からそれぞれ撮影。
キッチン棚も備え付けており沢山の料理を出す際にもとても使いやすいそうです。
当時、宿泊者用として提供していたベットもそのまま備え付けてあります。
掘りごたつのあるお部屋。
2階に上がる階段。
階段を上がると広い洋室。と客室に使えそうな和室6畳。
6畳の和室
2階に上がる階段。当日写真では記録出来なかったのですが、想像より広い、数人が雑魚寝できそうな屋根裏スペースがあります。
テラスデッキも完備。夏にはここで読書なんかしたくなりそうな雰囲気です。
家庭菜園エリア。フェンスは鹿よけ用。
如何でしょうか?こちらの物件、山小屋として使われていただけあり、一般的な別荘の作りというよりは少しペンションに近いかもしれません。
4名程度の人数でも快適に過ごせそうですので、居住目的はもちろんの事ですが、都心から2時間弱で行くことのできる富士見町の利便性を活かして企業の保養目的、リモートワークの施設などでも快適に過ごせると思います。
山小屋的な暮らしを是非ここ富士見町で。
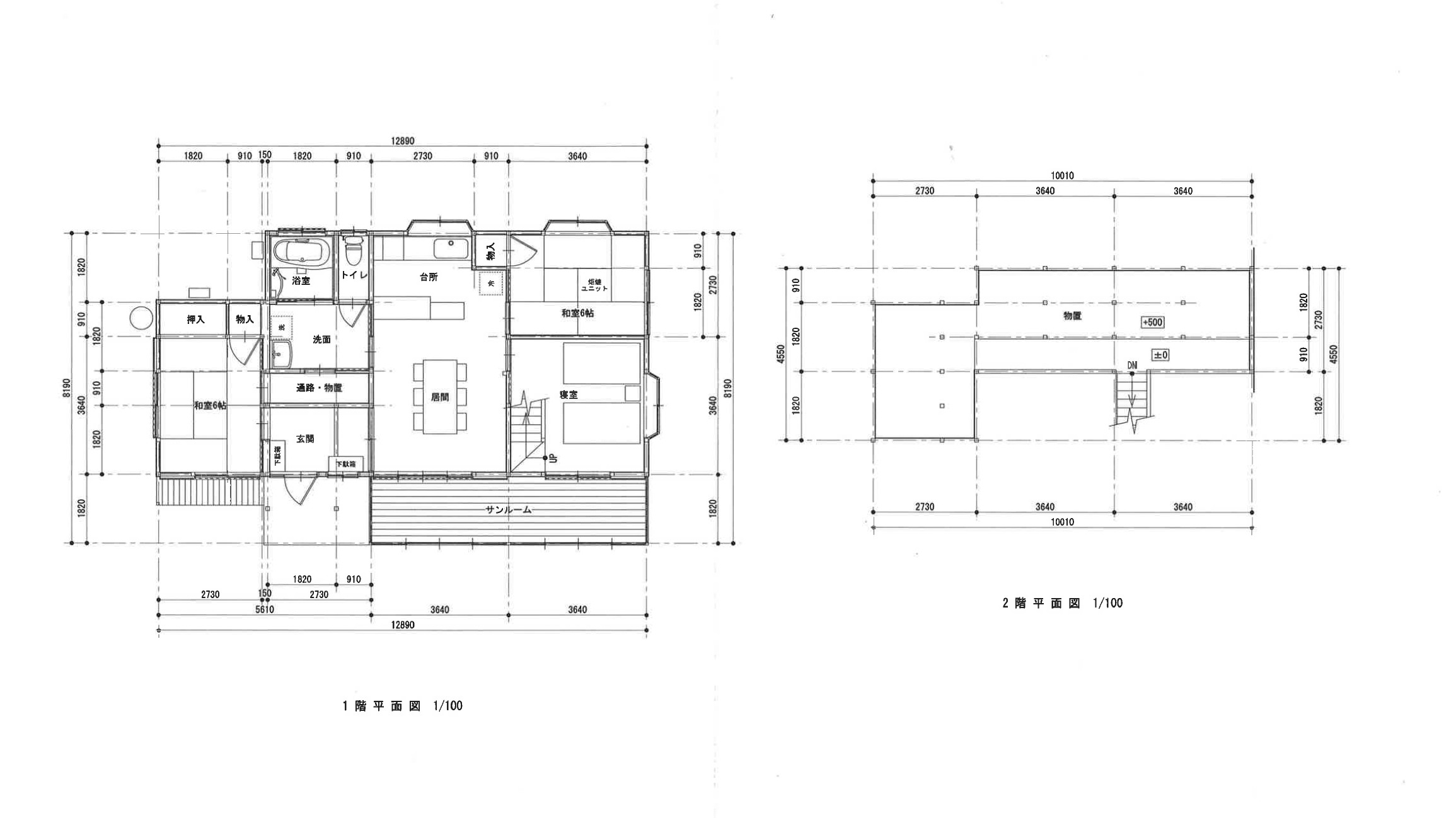
物件断面図はこちら。
4名程度の人数でも快適に過ごせそうですので、居住目的はもちろんの事ですが、都心から2時間弱で行くことのできる富士見町の利便性を活かして企業の保養目的、リモートワークの施設などでも快適に過ごせると思います。
山小屋的な暮らしを是非ここ富士見町で。
物件断面図はこちら。
物件基本情報
| 物件種目 | 一戸建て中古住宅 | 価格 | 売り主希望価格土地600万円、建物600万円。 合計1,200万円 売り主希望価格700万円 仲介手数料法定額 297,000円 |
|---|---|---|---|
| 物件所在地 | 富士見町富士見字糠屋8325-12 | 交通 | JP中央本線富士見駅より車で20分 |
| 土地 | 212坪 | 建物 | 木造亜鉛メッキ鋼板葺2階建て 1F90.11㎡、2F32.29㎡ 合計122.4㎡ 約37坪 |
| 土地権利 | 所有権 | 電気 | 中部電力 |
| 築年 | 平成12年築 | 水道 | 水源町水道 |
| トイレ | 水洗対応 合併浄化槽設置済み |
ガス | LPG 給油機、ストーブ等、灯油併用 |
| 設備 | ペアガラス、断熱材施工済み 家庭菜園(フェンス有り)ブルーベリー有り 飛び地駐車スペース |
||
| 備考 | 別荘地管理費約6.5万円/年必要 西久保開発管理地内 |
||