今回ご紹介する物件は、富士見町の頼れる不動産屋さん。西久保開発さんからのご紹介物件です。
皆さんがイメージする田舎暮しってどのような印象でしょうか?
人里離れて森の中。寒い冬には薪ストーブで暖を取る。夏には友人を招いてバーベキュー。
そんな暮らしを理想とされている方にとっては最適な物件がこちらになります。
しかも平成15年築という築浅物件で価格は700万円という若い方でも手の届く価格。
富士見町は複数別荘エリアがあり、大きく分けて、八ヶ岳側と南アルプス側である入笠山の麓。今回ご紹介するエリアは後者の南アルプス側の別荘エリアに位置しています。
富士見駅からは車で約20分程になります。
それでは建物内を画像で紹介していきます。
広いリビングキッチン。築浅だけあって、壁や床も状態良しです。
冬には憧れの薪ストーブ。実はこれだけでも購入すると結構な価格なんです。
当日電気が通っておらず自然光のみの撮影でしたので、大分暗いですがトイレとバスはもちろん別々。改修の必要なくそのまま使えます。
洗面所もとても綺麗な状態。
2階に上がる階段。
階段を上がると広い洋室。と客室に使えそうな和室6畳。
夏には広いテラスでバーベキューなども出来そう。家の周りは森に囲まれています。
こちらの物件、別荘エリアの物件ではありますが、もちろん定住も可能です。
別荘エリアですが、車であればそれほど駅からも離れていない為、生活する上での不便はそれほど感じないかもしれません。
別荘として使うも良し、定住する住宅として使うも良し。改修の必要がないので、すぐに居住可能な物件です。憧れの森の中で薪ストーブのある暮らし。手に入れてみませんか?
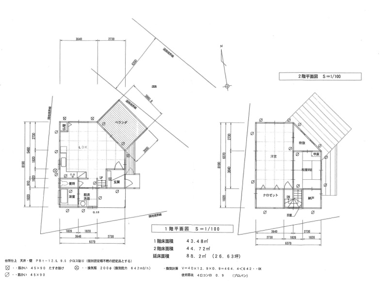
物件断面図はこちら。
別荘エリアですが、車であればそれほど駅からも離れていない為、生活する上での不便はそれほど感じないかもしれません。
別荘として使うも良し、定住する住宅として使うも良し。改修の必要がないので、すぐに居住可能な物件です。憧れの森の中で薪ストーブのある暮らし。手に入れてみませんか?
物件断面図はこちら。
物件基本情報
| 物件種目 | 一戸建て中古住宅 | 価格 | 売り主希望価格土地600万円、建物600万円。 合計1,200万円 売り主希望価格700万円 仲介手数料法定額 297,000円 |
|---|---|---|---|
| 物件所在地 | 富士見町富士見字糠屋8315-167 | 交通 | JP中央本線富士見駅より車で20分 |
| 土地 | 合計189㎡ | 建物 | 木造亜鉛メッキ鋼板葺 平屋建 木造亜鉛メッキ鋼板葺2階建て 1F43.48㎡、2F44.72㎡ 合計88.2㎡ 約27坪 |
| 土地権利 | 所有権 | 電気 | 中部電力 |
| 築年 | 平成15年築 | 水道 | 水源町水道 |
| トイレ | 水洗対応 合併浄化槽設置済み | ガス | LPG 給油機、ストーブ等、灯油併用 |
| 設備 | テレビ 地デジアンテナ在り 薪ストーブ有り、ペアガラス、断熱材施工済み |
||
| 備考 | 別荘地管理費約6.5万円/年必要 西久保開発管理地内 |
||