今回ご紹介する物件は長野県と山梨県の県境にあり、富士見町落合の机(つくえ)というエリアで国道からあがった少し高台にある地区です。
スーパーや病院は車で7分程度、落合保育園まで徒歩圏内、落ち着いた環境で自然を感じながら生活できる戸建て賃貸物件。
築年数は25年、すぐに住める状況です。(入居日も応相談で即日可能です)
家の中心にあるリビングは南向きで陽当たり良好、明るく開放感のある空間で生活導線もよく暮らしやすい間取りです。
賃料:8万円
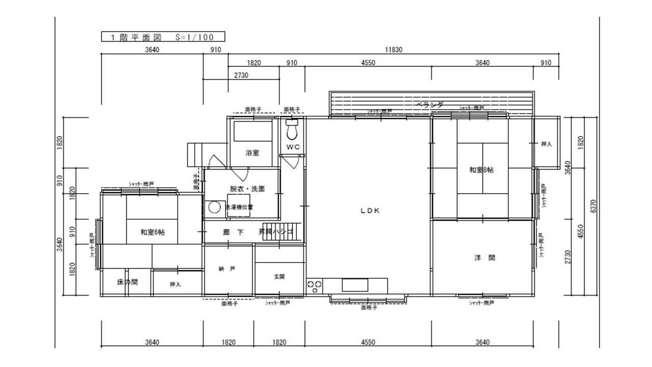
間取り:3LDK
駐車場:2台分あり(無料)
ペットNG
庭はなし
*お部屋の雰囲気にあった家具や家電などがありますが使用か撤去するかは応相談(ダイニングテーブルは撤去)。
富士見町に住んでみたいけれど、アパートではなく、戸建てに住みたい。
購入前に賃貸で戸建てに住み、富士見町に将来的には家を建てたいと思っている家族や夫婦におすすめ物件です。
それでは建物内を画像で紹介していきます。
間取り
家の中での移動がスムーズで、生活や家事が効率的に行える間取り
外観
道路沿いに面していますが、住宅地のため静かな環境です。駐車場は家の隣と道を挟み空き家スペースに駐車可能。玄関にもシャッター(自動開閉)もあり長期留守の時には防犯対策にも◎
リビングルーム
自然素材を使い外の景観と室内が一体化した設計になっており、ソファーに座ると目の前は森が広がるパノラマビュー。風通しも良くクーラーなしでも生活ができます(但し、クーラーが必要な場合は応相談で取り付け可能)ダイニングを中心に和室や水回りに続きます。冷蔵庫や大型TVもあります(撤去可能)
部屋
ダイニングに続く和室8畳。押し入れもあり収納力も◎。
和室から続く洋間は寝室や子供部屋にも最適
水回り
清潔感ある水回り。高めの天井や大きめの浴槽で浴室全体に余裕があり、伸び伸びと身体を伸ばせそう。自然光がたっぷり入る大きな窓からは外の景色を楽しめます。
清潔感ある水洗トイレ
お風呂
収納設備
収納力のある賃貸物件を探している方にはぴったりの物件です。デッドスペースを有効活用した収納スペースもあるので、アウトドア用品やベビーカーなどもすっきり収納できます。普段は収納されている階段を出せば屋根裏への収納も可能で普段使わない荷物の保管に最適です。
環境
陽当たりや風通しも良く住み心地が良さそうな物件です。暮らしを快適にする設備が整った戸建て賃貸は希少。ゴミステーションもすぐ近くです。
物件基本情報
| 物件種目 | 平屋一戸建て | 価格 | 80,000円/月 |
|---|---|---|---|
| 物件所在地 | 富士見町 落合 机 | 交通 | 富士見駅から約3km、車7分 中央道小淵沢インターより車15分 |
| 土地 | 建物 | 床面積27坪 | |
| 土地権利 | 電気 | 開通 | |
| 築年 | 築25年 | 水道 | 開栓 |
| トイレ | 水洗トイレ | ガス | LPガスを借主がガス事業者と契約 |
| 設備 | 灯油タンクあり | ||
| 備考 | ・定期借家型(2年)更新ではなく新たに契約 ・敷金なし・礼金8万・共益費なし・仲介料4万円 ・保証人(三親等以内)必要 ・年収証明または代替書類 ・ペット不可 ・住居として利用(商業利用はNG) ・火災・家財保険など借主が加入 ・区費は借主が負担 年間1万程度 |
||
こちらの物件、町内では中々出ない平屋戸建賃貸。「富士見町」「戸建て」「賃貸」という条件で物件を探されていた方にとっては興味深い物件です。ご興味持たれた方は内見予約下さい。(日程調整します)下記にてお問合せ下さい。
お問い合わせ | ウツリスム 長野県富士見町にくらす (u-town-fujimi.jp)