今回ご紹介する物件は駅からも徒歩圏内、静かな住宅街に佇む物件です。
日当りも良く、目の前の見晴らしも開放的で自然豊かな立地。
こちらの物件の魅力は富士見町では、なかなか出てこないコンパクトな平屋住宅。
駅近くの物件は駐車場や家庭菜園できるスペースが小さ目ですが、この物件は駐車は3台停められ、菜園や庭園もできるスペースが十分あります。三方ともに背の低いブロック塀で囲まれているため隣近との距離もあり住宅地でもあまり気になりません。
築46年・3DK・価格は495万円!
通学区は富士見小学校・富士見中学校(徒歩で通学が可能エリア)
富士見小学校まで約35分、富士見中学まで約20分と徒歩圏内。
諏訪南インターICからも車10分の場所です。
駐車場有(3台可能)
空き家になった期間が短いため改修部分も少なく住める物件です。
設備などは動作未確認ですが水道・電気・ガスは契約後すぐに使用できます。
改修した方が快適に暮らせそうな箇所の費用にかかる参考金額を記載しますので、検討材料にしてください。
●キッチン…50~100万円
●お風呂…150~200万円
●壁と天井のクロス張替え(6畳)…5~6万円
●床のフローリング化(6畳)…10~15万円
(一般社団法人移住・交流推進機構JOIN HPより抜粋)
改修費用も加味してご検討ください。
*条件に合えば空き家改修費補助金も活用できます!
★荷物は片付け済です。
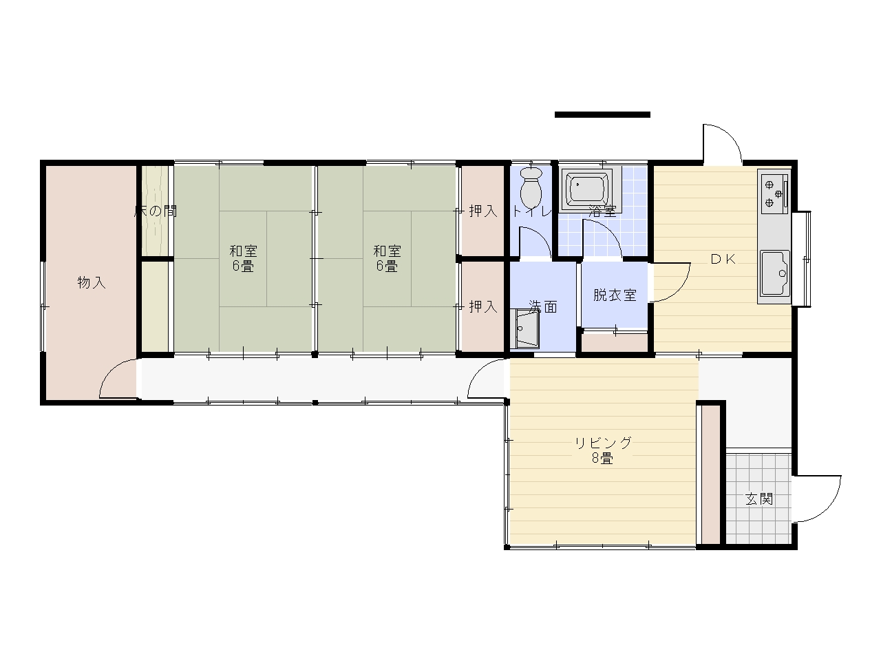
間取り
玄関からのアプローチも良く生活導線も効率良い間取りです。畳の和室を床にして寝室や子供部屋にするのも良さそうです。収納スペースも◎
水回り
キッチンやお風呂は改修した方が使いやすく、給湯機含め設備の入れ替えは必要です。
部屋
洋間からの眺望も◎。畳は劣化があるため入れ替えした方が良さそうです。
外観
建物の北側は写真の通り段差があるため、小さなお子様がいらっしゃる場合は柵が必要です。高台にあるため眺望は良く、庭も手入れ次第で使い勝手は良さそうです。
R7-8内見希望と記載ください!
内見予約| ウツリスム 長野県富士見町にくらす (u-town-fujimi.jp)・・・・・・・・・・・・・・・
写真に合わせて紹介しましたが、いかがでしたでしょうか?
荷物は全て片付け済です。
尚、物件の住所は非公表ですので必ずウツリスムにて受付後の内見となりますことご了承ください。
空き家情報はお電話にてご案内も可能です。
基本情報
| 物件種目 | 木造平屋建て | 価格 | 495万 |
|---|---|---|---|
| 物件所在地 | 富士見町富里 | 交通 | JR富士見駅1km |
| 土地 | 370㎡(112坪) | 建物 | 79㎡(24坪) |
| 土地権利 | 所有権 | 電気 | 使用可 |
| 築年 | 昭和54年 | 水道 | 使用可 |
| トイレ | 水洗 | ガス | 契約後使用可(プロパンガス) |
| 設備 | 動作未確認 | ||
| 備考 | 現状渡し、権利譲渡、建物内外不用品は売主が撤去済 | ||