(R6-13)【契約済み!】
賃貸物件!富士見小学校徒歩3分
【1階】作業場+物置 【2階】住居3DK
築27年(家賃80,000円)
*入居開始即日可能 

  今回ご紹介する物件は戸建ての賃貸物件、場所はJR富士見駅から車で約7分の富士見ヶ丘地区。
富士見小学校まで徒歩3分、西山保育園まで徒歩7分と子育て家族にもおすすめの立地です。
小学校の校歌の中には「連なる峰は八ヶ岳、はるかに高い富士の山、空気は清く光ゆたかな、ここは信州富士見高原…」と歌われているほど風光明媚な場所で目の前には山が連なり、標高1995m入笠山の登山はもちろんの事、1年を通じて山岳リゾートがその日の天気と相談しながら満喫できます。

2階建の物件ですが、
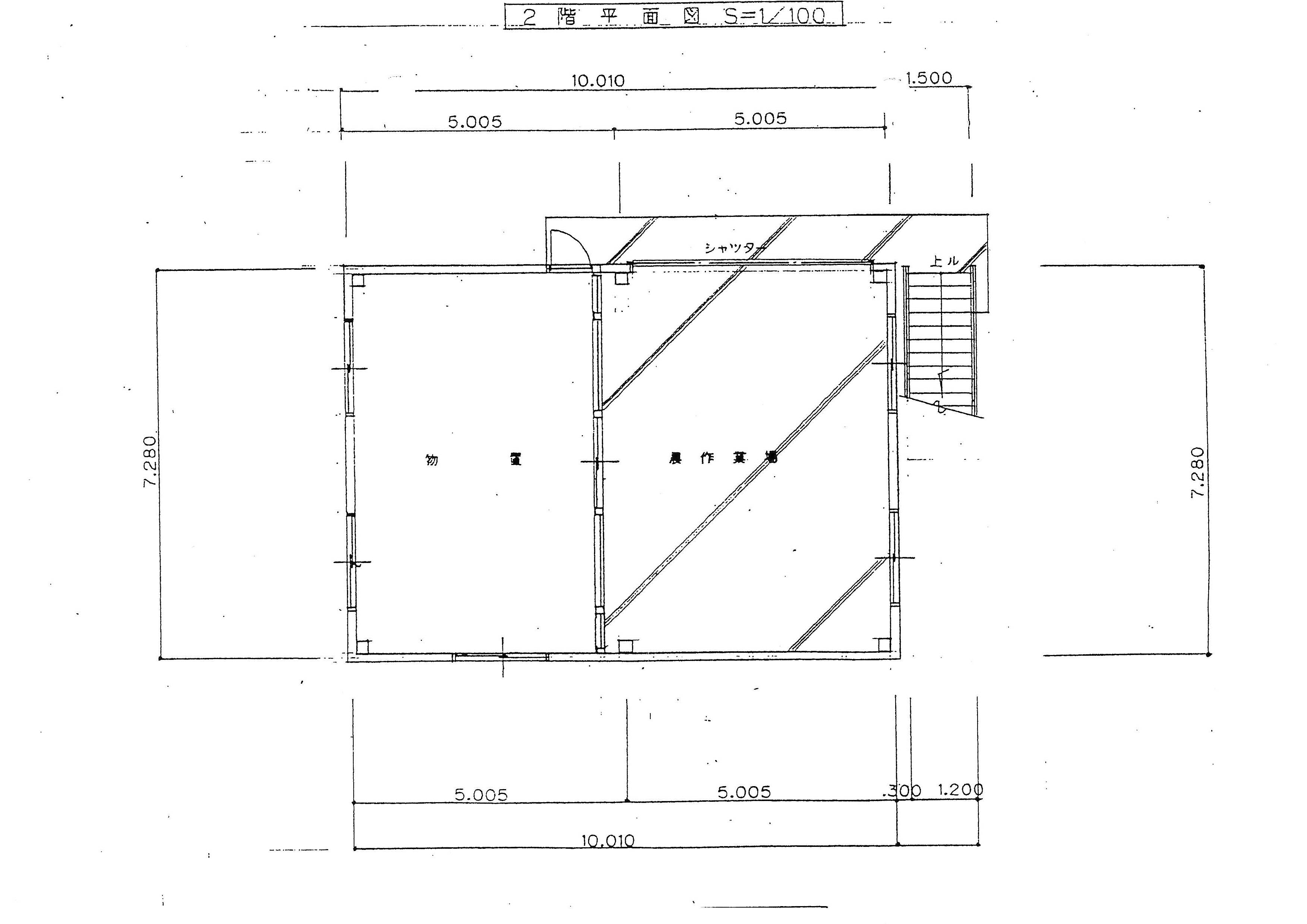
【1階】フリースペース72㎡(約22坪)
*ガレージではないので車の進入はできません。
物置や作業場として使用できますが、子供の遊び場や趣味のための部屋としても使えそうです。
例えば登山用のテントを干したり、アウトドア用品を置いてキャンプ気分を味わったり、どう使うかはアイディア次第。
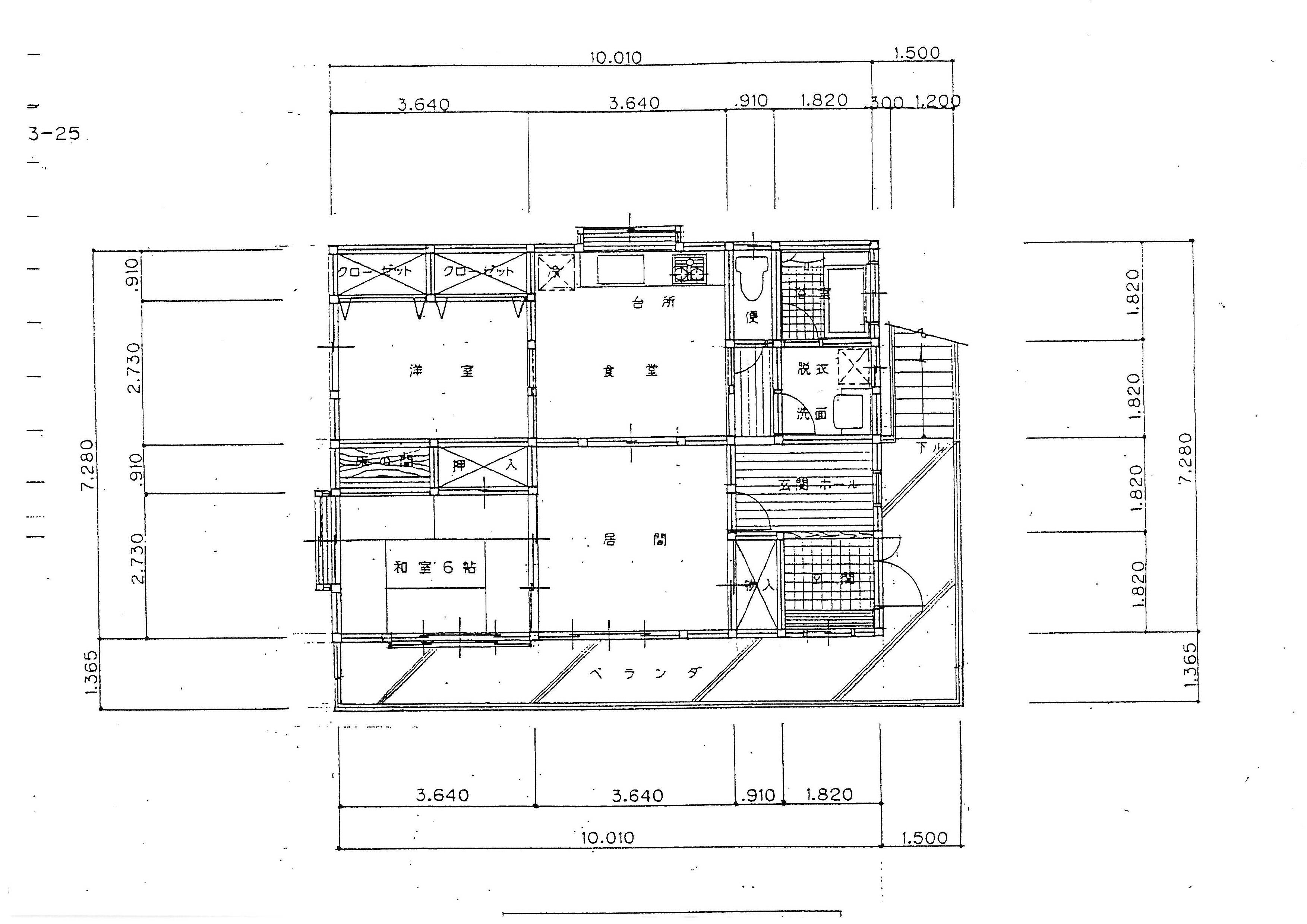
【2階】居住スペース72㎡(約22坪)
3DK(洋室2間+和室1間)

ダイニングキッチンを中心とした3DKの間取りはそれぞれの部屋が続いており、和室もあるので子育て中にはピッタリです。
システムキッチンも広く水回りも清潔かつ機能的で不便なく使えます。
料理好きには嬉しいガスコンロで万が一の停電時でも使用できるのもいいです。
築年数は27年経っていますが、使用感もなくすぐに住める状態、敷金礼金なしという好条件です。

賃貸物件80,000円/月。
これはまさに希少物件。
駐車スペースも2台あります。

★内見予約は下記日時のご希望日を参照の上、メール問い合わせフォームにてお願いします!




間取り図

【2階】居住スペース
【1階】農作業・物置スペース

2階

ダイニングキッチン
収納抜群の広々システムキッチン
居間
ベランダに面しているので日当たりの良い洋間
洋室
広々とした収納たっぷりのクローゼット付
和室
6畳の和室はベランダ付のためお布団もすぐ干せます

水まわり

お風呂
洗面所・洗濯機置き場
水洗トイレ

2階

作業場
農作業用に作られたスペースですが、窓もあり風通りも良いので用途は様々
物置
コンクリート敷きなので物置では勿体ないスペースです

玄関&外まわり

玄関
広々としたスペースで下駄箱もたっぷりサイズ
階段
2階には外階段を使って2階へ
外観
周辺は閑静な住宅地ですが、自然豊かな場所

物件基本情報

物件種目 鉄筋・木造亜鉛メッキ鋼板葺 価格 80,000円/月
物件所在地 富士見町 富士見ヶ丘 交通 富士見駅から車7分 中央道諏訪南インターより車7分
土地 267㎡(81坪) 建物 2階建
土地権利 電気 開通
築年 築27年 水道 開栓
トイレ 水洗トイレ ガス LPガス
設備
備考 敷金・礼金なし
ペット不可
 こちらの物件、町内では中々出ない戸建ての賃貸。
使い勝手の良い2階と広々としたフリースペースの1階、閑静な場所に佇む物件はなかなかでません。小学校も近く「即日入居対応可能」のため、4月からの新入学にも間に合うタイミングです。
「富士見町で子育て」「戸建て」「賃貸」という条件で物件を探されていた方にとっては興味深い物件です。
ご興味持たれた方は内見予約下さい。(日程調整します)
ご希望の内見日時をお知らせください。
(希望に添えない場合もあります。ご了承ください)

★平日のみ★
□9:30~
□11:00~
□13:30~
□15:00~